Aménagement du café communautaire maison des contes et légendes, Lavaltrie
Réalisé par: Emy Lamouche et Maude St-Georges
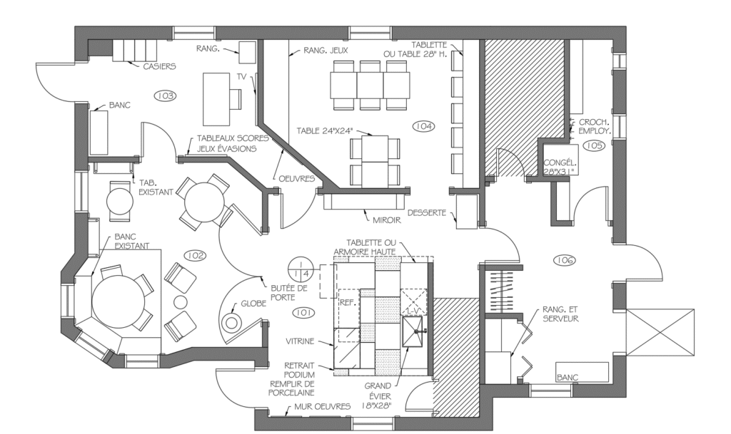
Le café communautaire a pour mission de devenir un véritable espace de vie et de rencontres pour tous. En journée, l’ambiance se veut chaleureuse et conviviale, idéale pour les aînés souhaitant prendre un café, discuter, socialiser et tisser de nouveaux liens. En soirée, le café change d’atmosphère pour accueillir une clientèle plus jeune autour d’activités variées : soirées jeux de société, animations thématiques, et même un jeu d’évasion original. Ouvert à tous, ce lieu unique vise à rassembler des générations différentes dans un esprit de partage, d’inclusion et de divertissement.

ÉTAPES RÉALISÉES
– Analyse des besoins
– Relevé de mesures et visite des lieux
– Idéation et tableau d’idées
– Plan d’aménagement
– Sélection des matériaux et du mobilier
– Esquisses préliminaires
– Dessins techniques
– Modélisations couleurs 3D

